REPco Industries Inc.
Tel. 770-464-1962 · Fax 770-464-3194
E-Mail
Home
•
About Repco Industries
•
About Steel Framing
•
About Framing Systems
•
Steel Framing Packages
•
Insulated Concrete Forms
•
Residential Steel Framing
Steel Frame House Plans
•
Commercial Steel Framing
•
Garages
•
Gallery
•
Virtual Tours
•
Green Building
•
Dealer Opportunities
•
Contact Us
•
Resources
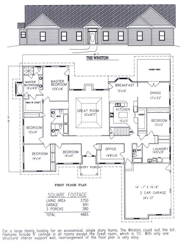
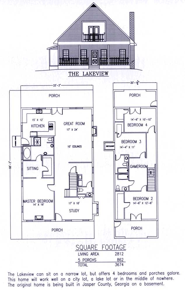
Residential and Commercial Steel Frame Homes, Buildings & Garages
© 2009 All Rights Reserved
WSP:
Net Matrix